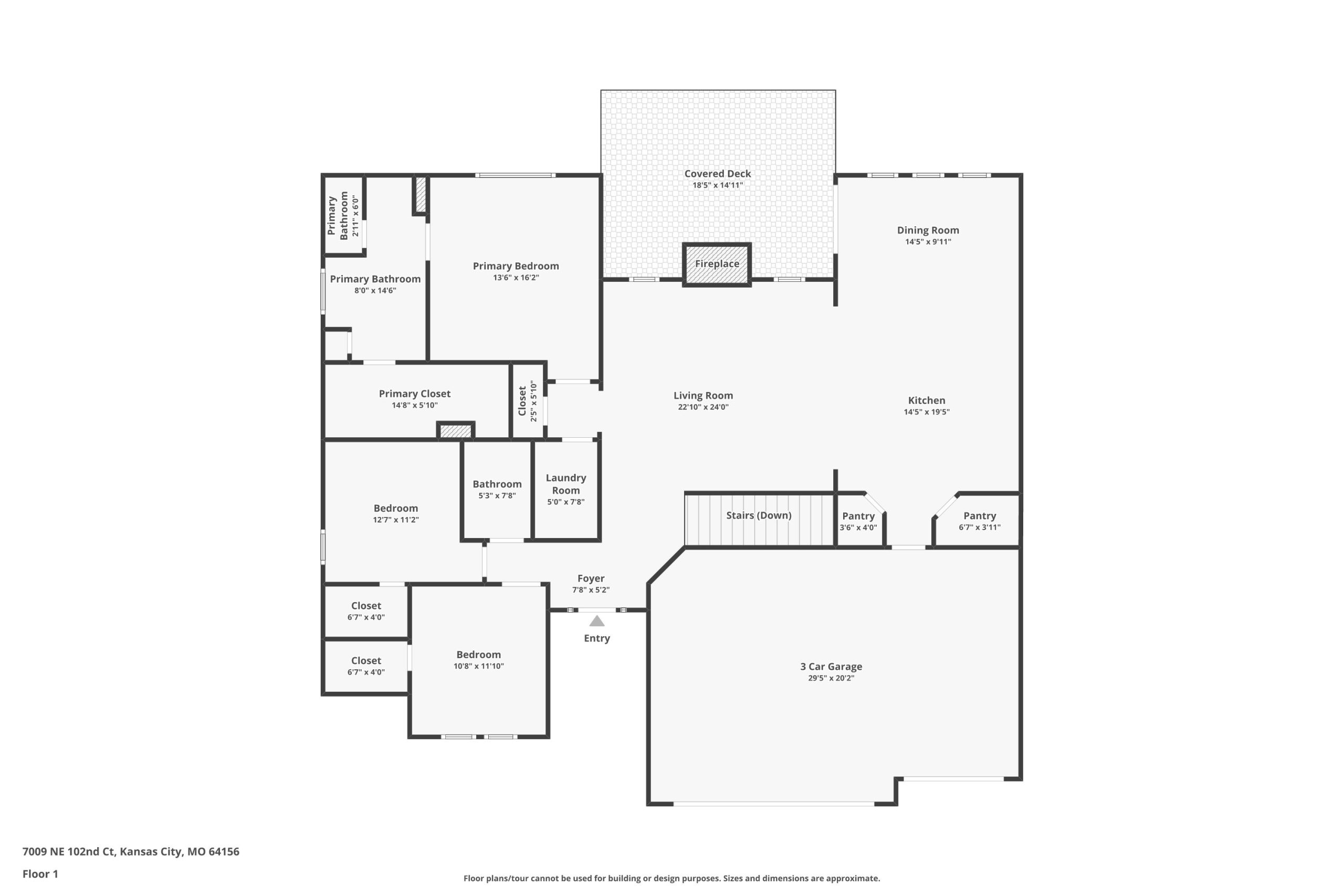
The Alpine
A thoughtfully designed reverse 1.5-story floorplan offering versatility, light-filled spaces, and functional elegance.
– 4 bedrooms | 3 bathrooms
– 3 car garage with EV receptacle
– Open kitchen and living area with strong sightlines and natural flow
– Covered Deck
– Well-suited for buyers who want a balance of openness, privacy, and modern design
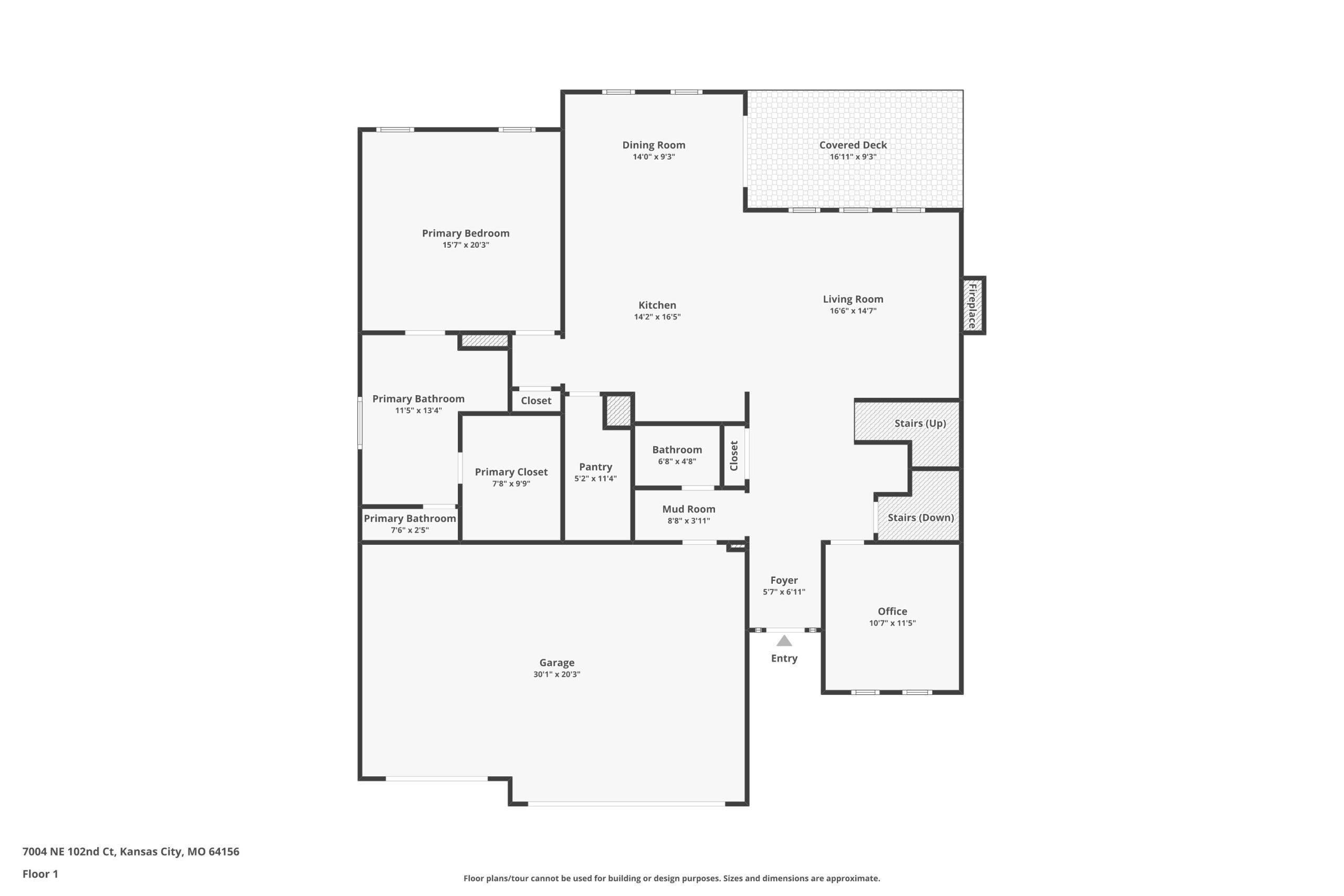
The Bentley
A spacious 1.5-story home designed for those who want room to spread out without sacrificing style or comfort.
– 5 bedrooms | 3.5 bathrooms, plus a dedicated office
– 3 car garage with EV receptacle
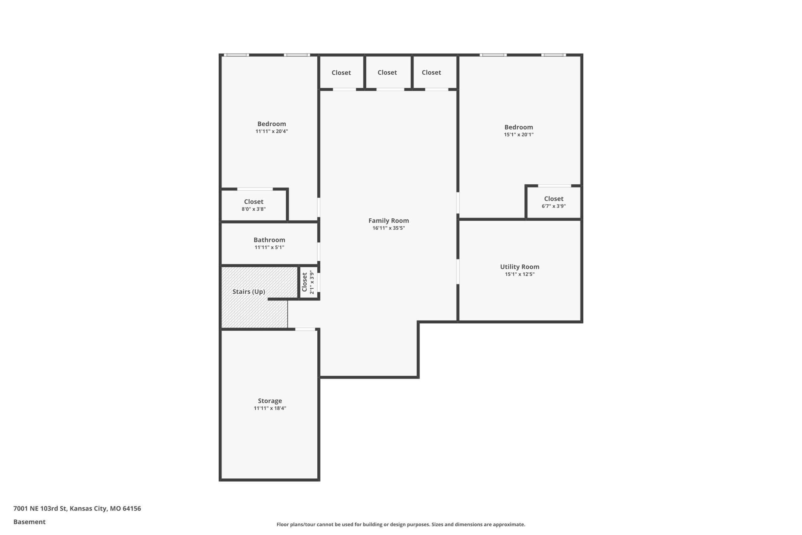
– Walkout lower-level design available
– Generous main-level living spaces ideal for entertaining and everyday use
– Upper-level bedrooms provide privacy and flexibility for family or guests
– Select homes feature custom finishes for an elevated, one-of-a-kind feel
The Jordan
A refined reverse ranch-style floorplan designed for effortless single-level living with added flexibility below.
– 4 bedrooms | 3 bathrooms
– 3 car garage with EV receptacle
– Available with walkout or in-grade lower levels
– Open-concept kitchen and living areas filled with natural light
– Perfect for buyers seeking convenience, comfort, and long-term livability
The Peyton Expanded
A thoughtfully expanded reverse ranch-style floorplan offering comfortable main-level living with added space for flexibility and entertaining.
– 4 bedrooms | 3 bathrooms
– 3 car garage with EV receptacle
– Thoughtfully designed layout with generous living and dining spaces
– Open-concept main living area designed for natural flow and everyday ease
– Ideal for buyers who want the convenience of a ranch-style home without sacrificing space
The Belmont
1.5 story reverse ranch – designed for single-level comfort with a spacious lower level that adapts to your lifestyle.
– 3 bedrooms | 2.5 bathrooms
– 3 car garage with EV receptacle
– Available with walkout or in-grade lower levels
– Open-concept kitchen and living areas filled with natural light

FAQs
What makes homes at Sara’s Meadow different from other new construction?
Homes at Sara’s Meadow are built with intention, not shortcuts. Hoffmann Custom Homes emphasizes hands-on oversight, proven building systems, and premium materials to deliver long-term quality, comfort, and value.
What types of materials and brands are used in these homes?
Hoffmann Custom Homes is intentional about using trusted, name-brand products known for durability and performance, including Moen plumbing fixtures, Gerkin Windows, Therma-Tru exterior doors, GE Appliances, LP Building Solutions, Tyvek house wrap, Sherwin-Williams paints, Lennox HVAC systems, and Owens Corning roofing products.
Are these homes built for energy efficiency and comfort?
Yes. The combination of quality materials, proper installation, and proven construction methods helps create homes that are efficient, comfortable, and designed to perform well in all seasons.
What kind of warranty comes with the home?
Each home is backed by a 10-year Quality Builders Warranty, providing long-term protection and peace of mind. After closing, homeowners work directly with the warranty provider for any covered items.
















